Construction Graphics LLC

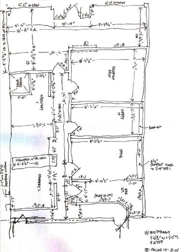
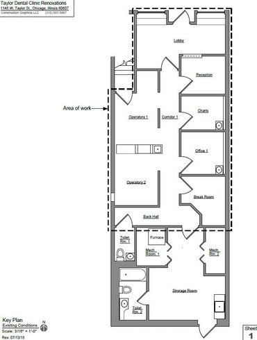
Construction Graphics was engaged to perform an existing conditions survey of this commercial space and produce dimensioned as-built drawings that the client’s architect could use to design from.





Copyright © 2022 Construction Graphics - All Rights Reserved.