Construction Graphics LLC
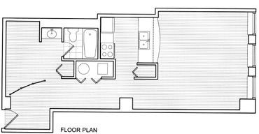
2D floor plans drawn to scale are perfect for conveying your ideas to builders and remodelers to get bids and material takeoffs. Floor plans are also extremely effective tools for helping sell or rent your home or commercial space.






Copyright © 2022 Construction Graphics - All Rights Reserved.